"The Pines"
A Furnished Rental Cottage
At the Daisy Barn Campground
Wilson, NY

The Pines is a cottage atop a bluff overlooking Lake Ontario on the Daisy Barn Campground property. The sunsets are spectacular. On a Clear Day you can see forever including Toronto.

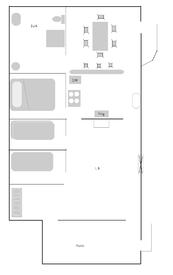
The living room includes a fireplace and settee alcove with separate enclosed front porch facing the lake. The large dining room area can accommodate eight.

The cottage has three bedrooms one bath. (Floor Plan) A master BR with a double bed and two smaller bedrooms, one with with bunk beds one with a single bed. There is also a loft above the garage that can accommodate four.

The cottage is equipped with an electric stove/oven, dish washer, refrigerator and microwave. In the one car Garage you will find the Washer/Dryer.

Visitors can avail themselves of all the campground offers as outlined at the Daisybarn Website, including boat trailer storage.    (Aerial Photo)

Rates: $900 weekly, $2,500 monthly
Includes utilities, cable & internet.
For more information call:
Debbie of Jeanine   716-751-3609




 


Campground View


Side of Cottage (without Garage)


Cottage and Garage

Alternate view

View from Lake

Stairs to Lake

Living Room

Living & Porch

Porch

Dinning

Kitchen



Loft above Garage

Second Bedroom

Master Bedroom